Unser Bauvorhaben 2024
Ihr neues Zuhause in der Rüggeberger Str. 86.
In ruhiger Lage errichten wir drei Reihenhäuser entlang der Rüggeberger Straße. Hier wohnen Sie im Grünen und dennoch zentral und gut angebunden. Die Reihenhäuser zeichnen sich durch eine sehr hochwertige Bauweise mit Klinkerfassade und Mineraldämmung aus. Vergleichen Sie, zur besseren Veranschaulichung, unser Bauvorhaben Am Kotten/Im Holte (Am Kotten 42-42c, in Gevelsberg).
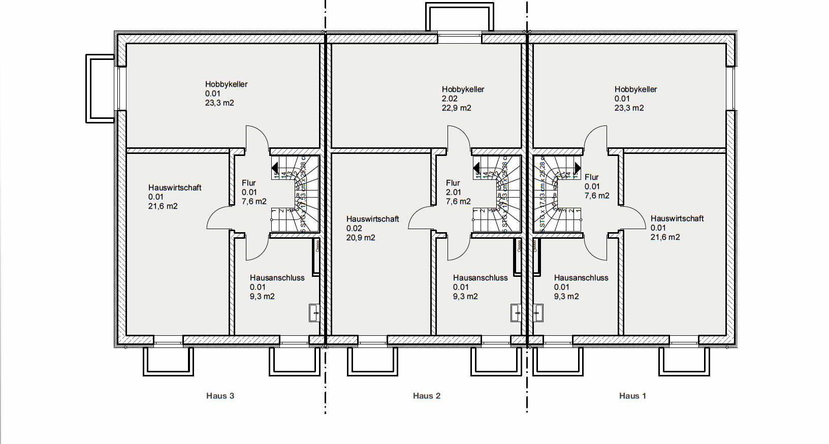
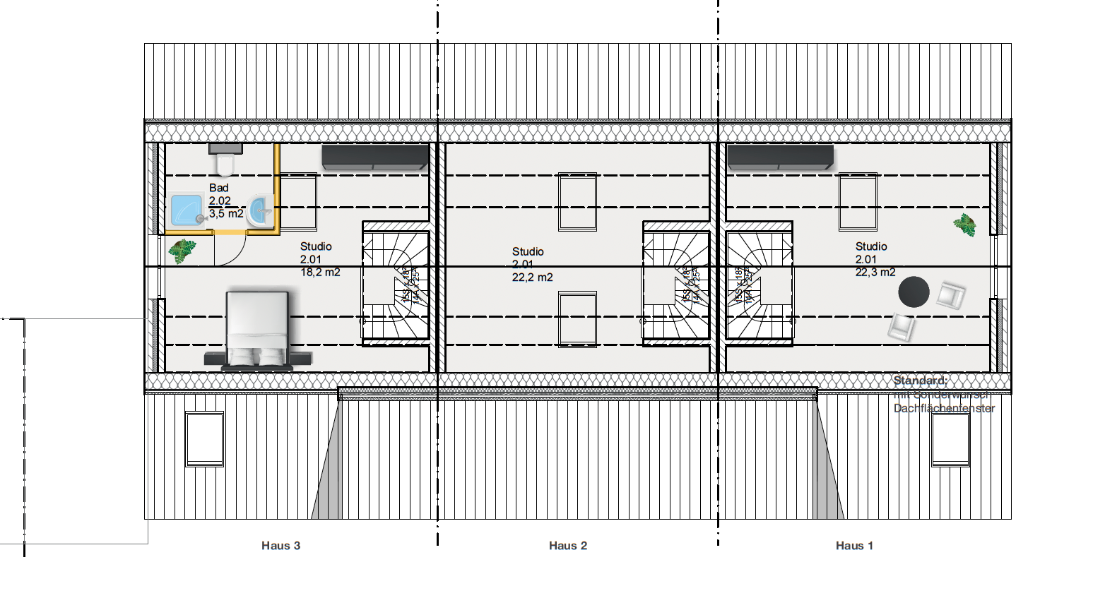
Besonders hervorzuheben ist die Hausbreite von 7,0 m, welche eine sehr variable Grundrissgestaltung auf ca. 140 m² Wohnfläche garantiert.
Weitere Eckdaten:
- voll unterkellert (Stahlbeton, d = 30 cm)
- Garage optional
- Wärmepumpe und Fußbodenheizung
- Kaufgrundstücke: ca. 190 m² - 370 m²
- Komplettpreis inkl. Erschließungskosten, provisionsfrei










